Casa Pouso
Data:
2026
Tipo:
Projeto Arquitetônico
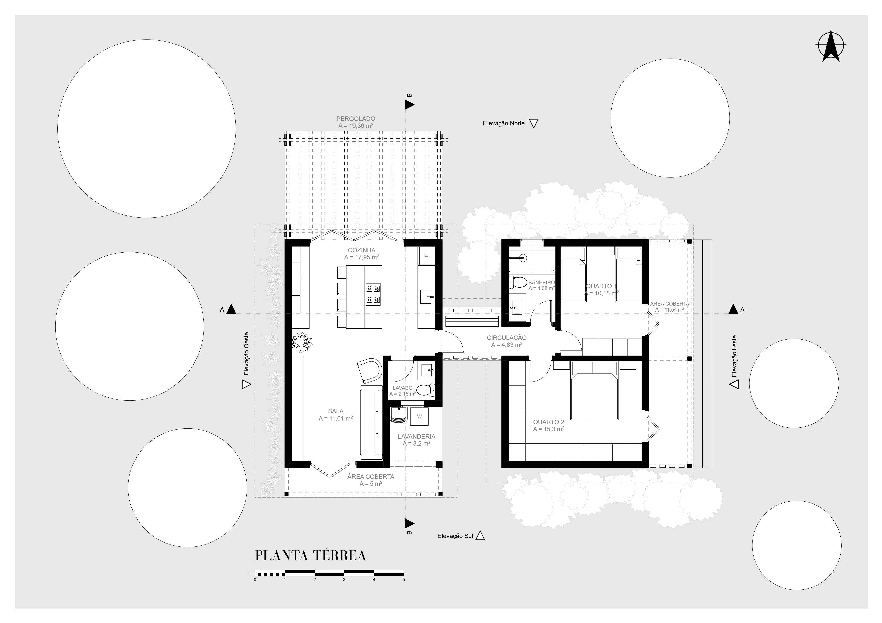
A Casa Pouso é uma residência rural para finais de semana de descanso e celebrações, que precisava ser compacta, convidativa, funcional e, sobretudo, adequada ao clima. Neste projeto arquitetônico, o setor social foi separado do setor íntimo por um corredor que permite a entrada de luz solar e ventilação, além de oferecer permeabilidade visual. Intencionalmente, os setores funcionam de modo independente, o que inclui um lavabo social à parte do banho íntimo.
A partir dessa segregação, foram criados dois blocos que culminam em uma cobertura borboleta, composta por telhas com isolamento térmico e estrutura de madeira. Haja vista que a busca é por manter o conforto ambiental apenas com estratégias passivas, tijolos maciços também foram utilizados como cobogós, criando aberturas altas para a dissipação do ar quente por diferença de densidade.
No que diz respeito à implantação, os quartos estão ligados a uma varanda, possibilitando uma circulação secundária sem passar pela zona social, e são privilegiados com o sol da manhã e. Além disso, o quarto do casal é preparado para armazenar equipamentos de manutenção, ferramentas, bem como jogos e objetos de decoração, para além do roupeiro convencional. Sala e cozinha foram projetadas para funcionar em conjunto, e as esquadrias camarão buscam potencializar a aproximação entre as áreas externas e o interior. Na zona social, o layout dos móveis soltos foi pensado para ocasiões em que possam ser convertidos em dormitórios extras para convidados.
É importante ressaltar que a vegetação também é um componente do projeto: árvores de pequeno porte e arbustos nativos foram escolhidos para não sobrepor a cobertura e prosperarem nas condições ambientais do local. Assim, elas atuam como filtro para a incidência solar na fachada oeste e também como barreira visual, concedendo mais privacidade aos quartos na fachada leste.
A Casa Pouso é um núcleo compacto passível de expansão futura, seja na possibilidade de um quarto ou depósito extra, quanto na ampliação da área externa ao norte, que abriga um pergolado. Dessa forma, a arquitetura se mantém atual ao longo do tempo, acompanhando as necessidades dos usuários sem perder sua essência.







